Family Built Homes
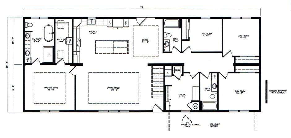
FB-7601
2305 sq.ft.
4 bedrooms
3 bathrooms
30'4" x 76'0"
| |||||||||||||||||||||||||||||||
|
Call for appointment or walk in Wednesday through Saturday 10am to 4pm
Call for appointment or walk in Wednesday through Saturday 10am to 4pm
| |||||||||||||||||||||||||||||||
Family Built Homes | |||||||||||||||||||||||||||||||